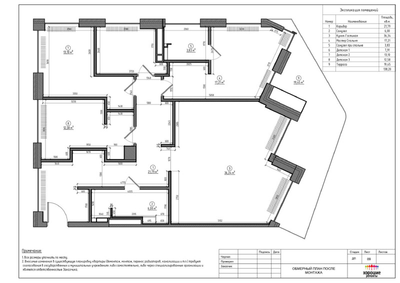
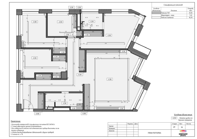
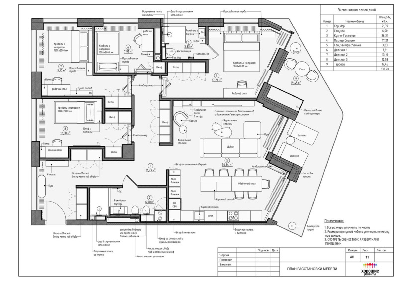
Сделаем замер квартиры, грамотную планировку, план расстановки мебели и оборудования, план электрики, сантехники, демонтажа и монтажа перегородок.
Дизайнер поможет сформировать список гармонично сочетающихся чистовых материалов (плитки, обоев, ламината, элементов декора). Вы можете выбрать понравившийся ремонт из нашего портфолио дизайнерского ремонта и дизайнер поможет оформить ваш интерьер в подобном стиле.
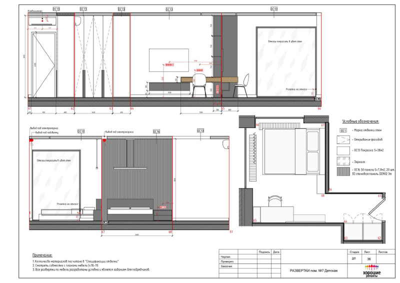
Выполним все работы «под ключ» от стяжки до укладки плитки, поклейки обоев, установки розеток, выключателей, светильников и сантехники.
Инженер технического надзора примет каждый из 12 этапов выполнения работ в соответствии со стандартом ГОСТ и СНиП и пришлет фотоотчет.
Доставим, разгрузим и проверим все материалы на целостность, комплектность, отсутсвие брака и наличие сертификатов соответствия.
По окончании ремонта проведем влажную послестроительную уборку.
Все используемые материалы экологичны, безопасны и сертифицированы. Работы выполняются по договору с последующей гарантией.
С учетом опыта работы нашей команды на сложных квартирах и проектах, фикс-ремонт выполняем за 60 дней без вашего участия.
Через 60 дней мы отдадим вам ключи от квартиры с ремонтом и кухней, готовой к вашему переезду.
ТарифыУказана стоимость за 1 м2 по полу |
White Box11 900 ₽
Предчистовая отделка квартиры
|
Минимальный22 900 ₽
Чистовая отделка после White Box
|
Максимальный29 900 ₽
Все работы "Под ключ" со стройварианта
|
Персональный29 900 ₽
Вы сами выбираете необходимые работы
|
|---|
| Стяжка пола работа (слой до 5 см) |
|
|
|
|
| Стяжка пола материал + подъем(слой до 5 см) |
|
|
|
|
| Настил ламината работа |
|
|
|
|
| Ламинат пол + подъем (800 + подлож + подъем) |
|
|
|
|
| Укладка плитки пол работа (25% от общей площади объекта) |
|
|
|
|
| Плитка пол + подъем (900 + клей + подъем) |
|
|
|
|
| Плинтуса работа |
|
|
|
|
| Плинтуса материал |
|
|
|
|
| Порожки работа |
|
|
|
|
| Порожки материал |
|
|
|
|
| Материалы: Ламинат (стоимость до 1000 руб / м2). Общее количество может составлять 100% площади объекта |
|
|
|
|
| Материалы: Керамическая плитка или керамогранит (стоимость до 1200 руб / м2). Общее количество плитки не должно превышать 25% площади объекта. |
|
|
|
|
| Грунтование стен перед оштукатуриванием |
|
|
|
|
| Оштукатуривание стен (слой до 20 мм) |
|
|
|
|
| Установка металлических уголков (на все внешние углы и откосы) |
|
|
|
|
| Шпаклевание стен и откосов под оклейку обоями |
|
|
|
|
| Финишное шлифование стен, откосов перед оклейкой |
|
|
|
|
| Оклейка стен обоями |
|
|
|
|
| Окрашивание откосов |
|
|
|
|
| Обшивка коммуникации гипсокартоном в санузле |
|
|
|
|
| Укладка керамической плитки в санузле (максимальная длина стороны 600 мм) |
|
|
|
|
| Монтаж отверстий в плитке (до 12 шт.) |
|
|
|
|
| Установка пластикового люка для доступа к коммуникациям в санузле |
|
|
|
|
| Монтаж решетки вытяжки |
|
|
|
|
| Работы по балкону - оштукатуривание, шпаклевание, окрашивание (без утепления) |
|
|
|
|
| Материалы: Обои (стоимость до 2200 руб. за рулон шириной 100 см) |
|
|
|
|
| Материалы: Плитка в санузел (стоимость до 1200 руб. за м2. Максимальное количество 25 м2) |
|
|
|
|
| Межкомнатные двери (стоимость до 10000 руб. за комплект) |
|
|
|
|
| Розетки, выключатели (стоимость до 300 руб. за единицу) |
|
|
|
|
| Монтаж L-образного потолочного профиля |
|
|
|
|
| Монтаж натяжного потолка в один уровень (глянец, матовый) |
|
|
|
|
| Материалы: Натяжной потолок (глянец или матовый) |
|
|
|
|
| Материалы: Люстры, бра (из расчета 1 единица на одно помещение, стоимость до 3000 руб. за единицу) |
|
|
|
| Разводка сантехнической точки (ХВС, ГВС) 6 точек |
|
|
|
|
| Разводка канализации (до 6 точек) |
|
|
|
|
| Установка ванны |
|
|
|
|
| Установка унитаза |
|
|
|
|
| Установка смесителей (2 шт, на раковину и ванну) |
|
|
|
|
| Установка умывальника |
|
|
|
|
| Материалы: Ванна (бюджет до 10000 руб.) |
|
|
|
|
| Материалы: Унитаз (бюджет до 7000 руб.) |
|
|
|
|
| Материалы: Раковина с подставкой (бюджет до 6000 руб.) |
|
|
|
|
| Материалы: Смесители (бюджет до 4000 руб. за единицу, включено 2 шт.) |
|
|
|
|
| Монтаж электрической точки (из расчета одна точка на 1,3м2 площади объекта) |
|
|
|
|
| Прокладка электрического кабеля |
|
|
|
|
| Монтаж распределительных коробок |
|
|
|
|
| Штробление и монтаж подрозетников |
|
|
|
|
| Установка розеток |
|
|
|
|
| Установка выключателей |
|
|
|
|
| Монтаж точечных светильников |
|
|
|
|
| Монтаж люстр и бра |
|
|
|
|
| Материалы: Розетки, выключатели, распределительный щиток, люстры, бра (по техническому проекту) |
|
|
|
|
| Монтаж накладного электрического щита (до 12 автоматов) |
|
|
|
|
| Установка защитных автоматов 16-25А (до 12 шт.) |
|
|
|
| Установка межкомнатных дверей (до 35м2 - 2 шт, 35-50 - 3 шт, более 50 м2 - 4 шт.) |
|
|
|
|
| Материалы: Двери межкомнатные (комплект). Дверное полотно, коробка, наличник, ручка, набор петель. |
|
|
|
| Доставка черновых и чистовых материалов оплачивается ОТДЕЛЬНО |
|
|
|
|
| Подъем материала оплачивается ОТДЕЛЬНО |
|
|
|
|
| Вывоз строительного мусора оплачивается ОТДЕЛЬНО |
|
|
|
|
| Предчистовая уборка объекта после ремонта (не клининг) |
|
|
|
|
ТарифыУказана стоимость за 1 м2 по полу |
White Box11 900 ₽
Выбрать
|
Минимальный22 900 ₽
Выбрать
|
Максимальный29 900 ₽
Выбрать
|
Персональный ₽
Выбрать
|
|---|
Введите площадь своей квартиры
Оставьте заявку и наш менеджер свяжется с вами в ближайшее время
Оставляя заявку - Вы соглашаетесь с условиями обработки персональных данных




